Locale commerciale a reddito in Piazza Don Bosco – Palermo


Palermo | 385.000,00 | Mq 150 | 3 | | 2

Description

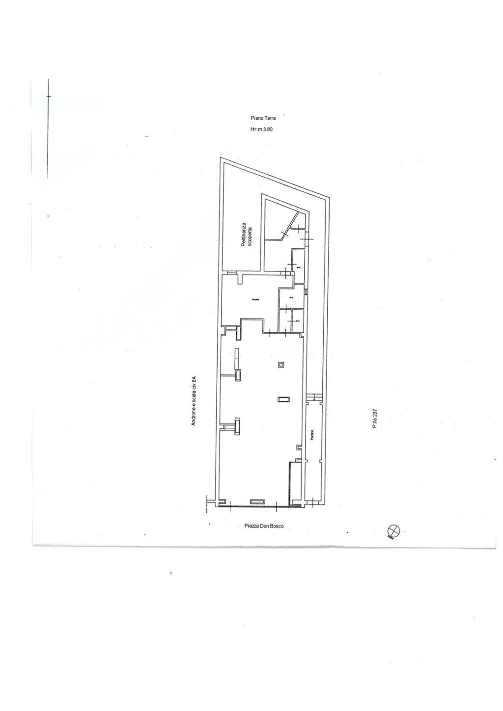
Proponiamo in vendita una proprietà esclusiva a reddito composta da un ampio locale commerciale situato nel cuore di Palermo, in Piazza Don Bosco, una delle zone più dinamiche e commerciali della città.
L’immobile, attualmente condotto in locazione da un noto marchio nazionale operante nel settore delle steak house, si sviluppa su una superficie interna di circa 150 mq, ben distribuiti e adatti ad attività di ristorazione di alto livello.
Completa la proprietà una pertinenza esterna retrostante di circa 40 mq, con accesso adiacente al locale, elemento di grande valore per l’attività in essere.
Soluzione ideale per investitori alla ricerca di un immobile in posizione strategica, con conduttore solido e ottima redditività.

Details

  • Code: A010/26
  • Tipology: Commercial property
  • Municipality: Palermo
  • Number of rooms: 3
  • Number of bedrooms:
  • Number of bathrooms: 2
  • Garage:
  • Sqm: 150
  • Annual condo fees €:
  • Furniture: Furnished
  • Floor:
  • Heating:
  • Year of construction:
  • Conservation: Good
  • Charateristics

    air-conditioning, Nr vetrine 1

    Energy efficiency

    classe energetica

    Prestazione energetica del fabbricato inverno estate

    Piazza Don Bosco Palermo

    Further information

    091.7828123 - 091.332280

    Pursuant to and for the purposes of articles 13 and 6 of EU Regulation 2016/679, I declare that I have read the information from Punto Casa di Claudio Costantino for the processing of personal data.

    Via Vann' Antò 4 - Palermo - Tel. 091.7828123 - 091.332280


    Locale commerciale a reddito in Piazza Don Bosco – Palermo

    Palermo | 385.000,00 | Mq 150 | 3 | | 2 | RIF A010/26

    Piazza Don Bosco - Palermo - Libertà

    Proponiamo in vendita una proprietà esclusiva a reddito composta da un ampio locale commerciale situato nel cuore di Palermo, in Piazza Don Bosco, una delle zone più dinamiche e commerciali della città.
    L’immobile, attualmente condotto in locazione da un noto marchio nazionale operante nel settore delle steak house, si sviluppa su una superficie interna di circa 150 mq, ben distribuiti e adatti ad attività di ristorazione di alto livello.
    Completa la proprietà una pertinenza esterna retrostante di circa 40 mq, con accesso adiacente al locale, elemento di grande valore per l’attività in essere.
    Soluzione ideale per investitori alla ricerca di un immobile in posizione strategica, con conduttore solido e ottima redditività.

    Efficienza energetica
    Prestazione energetica del fabbricato inverno estate